We may earn revenue from the products available on this page and participate in affiliate programs.
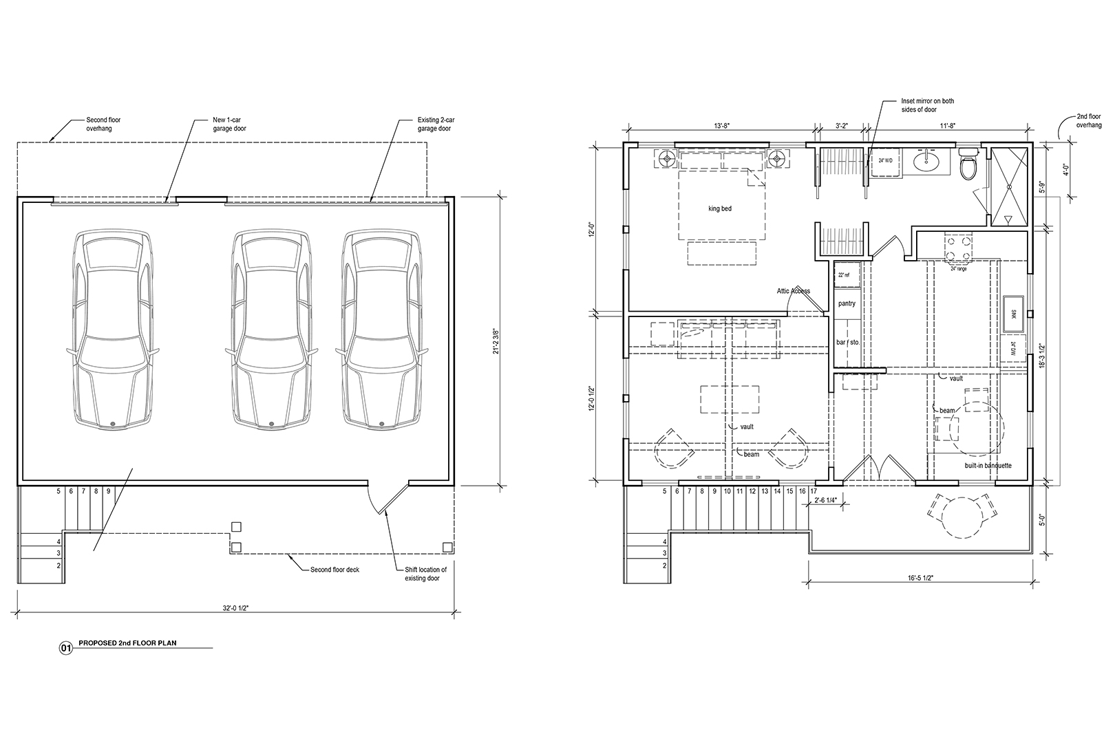
When the majority of the people in your household can be categorized as a preteen or teen, having a bonus space—a game room, a basement, a den, anything—is a must. Shannon and Mitch, parents to a 15-, 13-, and 11-year-old, had recently reached that ratio, and yet there was nowhere within their Houston home to retreat. So they turned outward, tacking a 725-square-foot apartment onto their garage. It now serves as a place for not just their children to relax away from the chaos, but three sets of very involved grandparents when they’re in town. “The kids desire a little space and privacy, and so do Mitch and I,” says Shannon. “Have I mentioned how loud a group of 13-year-old chatty girls can be?”
The pair tasked interior designer Emily Butler and architect Sarah Hannah with executing the addition. When Hannah sat down with the couple to mock up the plans, she showed them a previous conversion she had worked on with airy, vaulted ceilings—the opposite of a “college-y” vibe. “They really responded to that,” recalls Hannah. “One day when we finished up a meeting, they clapped. I knew it was going to be special based on the energy they gave off.” One top request from Mitch: It had to have a generator. “We’ve been through three hurricanes and an ice storm, all of which have shut down power for weeks,” he says.
Putting a living space above a garage isn’t an unusual concept in Houston, but people tend to plop another box shape on top of the original and call it a day. Shannon and Mitch wanted to ensure the addition looked like it had been built at the same time as the main house, so architectural details like transom windows were extra-important. “It’s by far the nicest-looking garage apartment in the neighborhood,” says Butler.
Keep Future Drivers in Mind


Before a dwelling could be added, a crew had to expand the garage from a two-car to a three. Any Houston property with an ADU is required to have a third parking spot, but the change had another lesser-known benefit: It offers more wiggle room for the couple’s oldest child, who is a new driver. From there, Hannah linked up with a structural engineer to figure out the inner workings of the framing.
Factor in Compatibility
All the contractor bids (everyone was pre-vetted by Hannah) came in around roughly the same price—now what? She advised the couple to instead make a decision based on who they thought they’d jell with the best. “Personality matches are important because communication is everything,” Shannon says. It’s her biggest tip for other homeowners looking to tackle a similar project. They ultimately went with Bayou City Builders, Inc. “Take time to hire people who are skilled at their trade, but also people whom you trust and genuinely like to be around,” she adds.
Make a Meal Out of It

Carving out a full-size kitchen was a choice made both for resale value and for future guests staying beyond a couple days. A “here’s your glass and Keurig” system, as Hannah puts it, wasn’t going to cut it. The architect and designer decked out the space with a range, refrigerator, and dishwasher drawers. It was a surprising splurge; smaller-size appliances are actually more costly than standard versions. Still, having everything you could ever need at your fingertips has worked out. A family relative was able to isolate there during COVID. “People are visiting more often and staying longer,” notes Shannon. “I think that’s a good sign that we accomplished what we set out to build.”
See Double


To give the kitchen a lived-in feel, Butler opted for butcher block counters. Then she split up a single slab of marble, using some for the sliver of backsplash behind the cooktop and the rest to top a bathroom vanity Shannon sourced on a trip to the Round Top Antiques Fair: “I’ve always loved vanities that were created from pieces of furniture, and I knew I wanted something similar for that space,” she says.
Leave (Almost) No Wall Untouched


An easy way to ensure the inside of the apartment didn’t feel dormlike was to go big on wall texture. (The only place with plain Sheetrock is inside the closet.) “The shiplap really makes a difference and elevates the space,” says Butler of the treatment in the public areas. She then switched to wallpaper in the bedroom and bathroom. The whimsical leafy print in the latter was Butler’s subtle nod to the fact that the place is reminiscent of a grown-up treehouse—which explains why visitors are never in a rush to leave. “Our kids have had few opportunities to host friends because we’ve had nonstop guests since we completed the space,” says Shannon with a laugh. “Our family is genuinely over the moon.”